
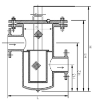
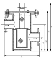
高低接管平底籃式過濾器(SG1型) 高低接管弧底籃式過濾器(SG2型) High-Low Nozzle Flat Badker Filter High-Low Nozzle Radian Basker Filter

高低接管籃式過濾器“設備材質” Materials of construction:
NO | 1 | 2 | 3 | 4 | 5 |
構件 Component | 殼體 Body | 濾網 Screen Mesh | 排污堵頭 Drainage nozzle | 密封件 Gasket | 螺栓/螺母 Bolt/Nut |
材質 Material | CS SS H62 CS襯PTFE | 304 316L PTFE | CS 304 316L PTFE | 金屬纏繞 PTFE | 304 316L |
注:連接標準:HG 、GB、 ANSI、 JIS、 DIN等等.
Standard Connection:HG、GB、ANSI、JIS、DIN、ect.
操作壓力:0.6MPa——5.0MPa (150Lb——600Lb)
Operating Pressure:0.6MPa——5.0MPa (150Lb——600Lb)
高低接管籃式過濾器“尺寸表” Dimension table:
DN | D1 | L | H | H1 | H2 | H3 | |
25 | 1 | 76 | 180 | 410 | 280 | 180 | 110 |
40 | 11/2 | 108 | 260 | 560 | 340 | 220 | 120 |
50 | 2 | 108 | 260 | 560 | 340 | 220 | 120 |
80 | 3 | 159 | 340 | 719 | 460 | 320 | 180 |
100 | 4 | 219 | 400 | 881 | 550 | 390 | 220 |
125 | 5 | 273 | 480 | 1079 | 630 | 450 | 260 |
150 | 6 | 325 | 500 | 1276 | 720 | 530 | 310 |
200 | 8 | 377 | 560 | 1397 | 900 | 670 | 390 |
250 | 10 | 426 | 660 | 1544 | 1070 | 800 | 480 |
300 | 12 | 478 | 750 | 1739 | 1360 | 1040 | 640 |
高低接管籃式過濾器“訂貨須知” Order Construction:
1、訂貨時請注明尺寸、操作壓力、濾芯材質、過濾介質及過濾精度。
Please give indication of dimension,operating pressure。Filter element type,filter medium andpore size.
2、當需要其他標準法蘭、材質或操作壓力時請在訂貨時注明。
Please give clear indication of flange,material and operating if you need other standard.
當你揭開的秘密吸氣過濾器
2016-05-31多想有個廣告過濾器的應用程序
2014-12-21過濾設備專家小議T型過濾器的作用
2014-12-08Y型過濾器成為水資源的救星
2014-09-17空氣過濾器能否緩解霧霾問題?
2016-01-05污水處理是美標過濾器密不可分
2016-06-28卓澤環保自制氧氣濾芯清洗設備效果很棒
2015-11-03全自動清洗過濾器在建筑排水中起到的積極作用
2014-12-19如何使用過濾設備需要看流體指標
2014-11-29過濾器日常維護中的常見錯誤分析
2016-10-18